平面設計主要反映導軌式爬架平面整體布局、預埋點位置以及爬架內立桿離墻距離。
架體的機位平面布置圖

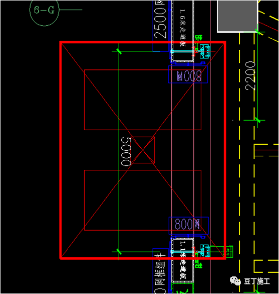
架體高度及內立桿離墻距離可隨施工需要確定,架體一般中心寬度為0.9米,架體步距1.8米。
本工程1#、2#公寓樓架體均擬定從2層開始組裝折疊式升降腳手架,均防護至女兒墻,如圖右所示。

采用15m高的折疊式升降腳手架,共布置了6層走道板,走道板步距從下到上分別為3.2m、3.1m、2.1m、2.3m、2.0m,剩余的2.25m作為防護高度 立面圖詳見右圖。


當梁板準備澆筑混凝土前,按照機位平面圖、立面圖,使用內孔35-40mm壁厚大于2mm的PVC塑料管,管兩端用寬膠布封住,以防止混凝土澆灌時進入管內而堵塞預埋孔。留孔左右位移誤差應小于20mm,當大于20mm時,需要重新校核定位并重新鉆孔。右圖粗線部分即存在250mm線條位置,架體的附著使用50mm+200mm的加高件進行附著(詳圖1、圖2)。細線部分即無線條位置架體附著使用50mm加高件進行附著(詳圖3、圖4)。住宅樓經常遇到奇偶層復式陽臺,此類結構架體附著需要使用多節立柱進行疊加,導座附著于立柱上,立柱通過可調斜拉桿拉結于結構上。復式陽臺水平范圍內,需要在每層走道板上600mm、1200mm高度,用鋼絲繩或者矩形方管安裝扶手。由于結構特點,部分機位不得不附著于挑板上,需要結合挑板的混凝土強度、配筋進行計算,無法滿足要求則需要通過斜拉桿進行卸荷,將荷載傳遞給內部框架梁或其他構件由于結構特點,部分機位不得不將特制預埋螺桿預埋于混凝土內一同澆筑(多出現在轉角或其他混凝土墻柱厚度較大位置)對于結構線條尺寸50mm-800mm的位置,需要通過加高件將架體墊出相同尺寸以便導軌正常通過。部分項目在靠近封頂樓層的較大變化外凸線條,也可與總包協商采取預留洞口方式讓導軌通過。凸窗位置上反部分二次澆筑時,可改用專用600mm的加高通用件進行附著。為了解決立面上某幾層線條較大(大于800mm)的情況,看使用加長三角鐵件附著于樓板上并斜拉卸荷的方式進行附著。在爬架安裝前必須搭設操作平臺,操作平臺搭設示意圖(見圖四)。根據建筑物具體情況,先將腳手架搭至標準層底層,安裝操作平臺位于樓面下800mm左右,平臺上鋪設腳手板,平臺內側距墻200mm,平臺寬度在1500 mm以上。搭設時注意平臺必須能承受2KN/m2荷載。
升降腳手架架體過塔吊附臂時,采用3m翻板式腳手板。待架體過附臂時,拆掉防護網,擰掉固定螺栓,翻起腳手板。過附臂后放下腳手板,固定好腳手板,安裝防護網。每提升一層通過塔吊附臂時,重復以上過程。由于架體為定型設計,故塔吊附臂需要嚴格按照雙方協商如圖所示進行布設。一般情況下,吊橋翻板需要設置在待建層下一層以下的全部走道板,如右圖需要從下至上設置4道本工程1#、2#公寓樓每棟樓設置一個自爬下撐式卸料平臺,位置如右圖所示。額定荷載1500kg,為確保施工安全,限定使用荷載不大于800kg。由于架體均從2層開始組裝,故卸料平臺需要從第3層開始使用。卸料平臺一般位于架體最下步走道板位置,開始使用位置一般較架體使用位置高上一層,例如架體從4層樓面開始組裝使用,則卸料平臺需要在5層才能開始使用。卸料平臺的提升及附墻與架體相同,可與架體分別獨立提升。待架體防護至封頂,底部卸料平臺隨著平臺上部架體的拆除而提升至頂層。卸料平臺先于地面組裝完成后經過驗收合格方可吊裝,吊裝前務必把所有零部件連接好,并保證其成為一個剛性的整體。若施工電梯始終在架體下方,則只需注意封頂之后,電梯需要上升至頂層。若電梯設置位置在轉角或者其他導致兩側跨度過大,電梯中央必須設置一個機位時,則僅能選擇一側轎廂進入架體。若電梯設置位置在較規整平直段,在滿足機位跨度要求下中間不需布置機位,則可兩轎廂同時進入架體。若架體既要上升又要下降,則施工電梯位置架體沿轎廂兩側預留200mm后斷開,并使用網片進行斷開側面的防護。①樓梯數量:原則上一棟樓設置兩個樓梯,需要增加樓梯需在招標文件體現③樓梯與機位之間必須保留至少600mm距離,以便通過。安裝進度計劃
根椐主體外墻工程進度確定其具體吊(組)裝時間,并保證折疊式升降腳手架高出施工作業面至少1.2米,組裝時需要人工15人左右。

輔助平臺水平度控制10-30mm,內立桿內緣離墻﹤200mm,外側立柱離墻>1200mm,外側搭設單排防護高度1500mm。首層走道板安裝后,間隔5~6米距離分別用2根鋼管上下扣緊夾住走道板,加固走道板。案例工程1#、2#公寓樓均為2層開始組裝,故在2層(1層頂板)位置搭設輔助平臺走道板連接:將兩片走道板外側用連接鋼板連接,內側用螺栓對接連接在一起,然后按平面布置圖的布置尺寸把走道板與建筑結構物平行擺放,并用加固扣件把走道板水平固定。走道板之間使用三顆M16X100螺栓連接,外側用4顆M16X80螺栓連接安裝立桿、水平桁架:按照平面布置圖的布置尺寸放置豎向立桿,用M16×100六角頭螺栓加墊圈、螺母與走道板連接,水平方向用水平桁架進行固定。水平桁架與立桿之間用M16X120螺栓,水平桁架與水平桁架之間用M16X100螺栓進行連接。安裝第二步走道板、網框連接件、網片:組裝好所有豎向立桿后,開始組裝第二步走道板,其高度見立面圖,一般首兩層為一個標準層高。豎向立桿每1.5m高范圍安裝兩個網框固定件,網框固定件用M16螺栓固定,和網片使用插銷連接。安裝固定導軌、導向座:先檢測預埋孔位置正確后,將導向座套入導軌,將M30全螺紋螺栓連接導向座固定到建筑結構上,螺栓兩端各加100x100墊片1個,螺母2個。安裝配電線路:由于電動葫蘆安裝在折疊式升降腳手架底部,故配電線路按實際要求可鋪設在第二層腳手板下部,配電線路為加工定制的帶定型插頭插座的定型電纜對口插接,每一種型號規格的定型電纜有不同孔眼的插頭插座,從制作上就扗絕了接錯線的隱患。智能提升系統由重力傳感器、智能分機箱及由倒掛電動葫蘆和上、下吊掛件、倒鏈裝置組成,通過上吊掛件固定在建筑結構上,形成獨立的提升體系,如下圖所示。智能提升系統由重力傳感器、智能分機箱及由倒掛電動葫蘆和上、下吊掛件、倒鏈裝置組成,通過上吊掛件固定在建筑結構上,形成獨立的提升體系,如下圖所示。附墻固定導向座(轉輪式防墜器)裝置是一種用于高層施工升降平臺、升降腳手架、升降機等高空墜落的轉輪式防墜裝置。高層施工升降平臺緩慢提升和緩慢下降時,導軌上的防墜桿與導座上的防墜轉輪嚙合傳動。當升降高層施工升降平臺架體在升降過程中突然下墜時,轉動速度突然加快,滑鍵的上下往復運動被破壞,防墜轉輪上的外齒卡住導軌上與其嚙合傳動的防墜桿,防止高層施工升降平臺繼續墜落,從而起到防止架體墜落的作用。

提升前需按“折疊式升降腳手架提升、下降作業前檢查驗收表”的要求檢查確認,并經總包、監理單位相關負責人簽字蓋章后方可升降;當有5級以上大風、大霧和下雨等天氣時,不得進行折疊式升降腳手架的升降工作;當遭遇臺風等極端惡劣天氣時,需要另外采取措施(拉結、下降、拆除網片)。 折疊式升降腳手架的提升以滿足施工進度要求為準,每棟樓提升一層的操作時間為 1 個工作日,勞動力安排 4~6 人2、將折疊式升降腳手架內的所有提升裝置拆除,并吊至地面分名別類的碼放整齊。注意提升設備及控制設備等拆除、吊離時必須有保護措施,以免造成損壞。3、將吊裝用鋼絲繩(或尼龍帶)鉤掛牢在分組處的架體單元走道板與外立桿對接位置、導軌位置、內立桿與走道板對接位置,塔吊稍往上提將其張緊,如下圖所示4、將塔吊吊住的架體單元與臨邊架體的水平桁架之間連接拆除5、將塔吊吊住的架體單元與臨邊架體的走道板之間的螺栓拆除6、將塔吊吊住的架體單元與臨邊架體的走道板邊夾板的螺栓拆除,拆除時操作人員必須嚴格按照施工安全要求系好安全帶。 8、拆除附墻固定導向座與建筑結構之間的穿墻螺桿,在上下方各裝一個防止固定導向座滑動的扣件。 9、清理架體上所有拆下的連接固件及建筑垃圾,避免吊裝時高空墜物。10、指揮塔吊將該架體單元慢慢往上吊,待與其它走道板脫離后再吊放至地面平放。11、地面操作人員將塔吊吊環拆除,并將架體單元上四根立桿拆除,準備用到下次吊裝,地面操作人員將架體單元所有走道板及封網等配件全部拆散并按類分別疊放到指定位置,以便打包運輸。12、 重復以上步驟,依次將折疊式升降腳手架的單元拆除、吊離和拆散。1、18m以下的架子(含18m)第一、二、三步走道板均為齊平樓層,即前兩個步距為層高如右圖,故前兩層施工時,需要鋁模使用馬蹬或其他方法輔助施工。若再增加一步走道板,則可均為1.8m-2.0m步距,但僅為前兩層增加一步走道板,材料的增加、人工的增加、重量變大后機位相應的增加,導致成本增加。
2、及時拆模:在施工過程中,總承包每澆筑一次混凝土,需要協調鋁模(木工)班組在第二天對爬架的附著點進行側面模板拆模工作,以方便我方及時安裝附墻導向座進行架體提升,確保工程進度。

3、鋁模的K板常與我方架體的附著點沖突。
①剪力墻位置:第一、剪力墻位置由于K板的存在,需要將導座安裝位置下移至K板下方,并至少使用50mm加高件以便導座的下灌。

第二、對爬架附著位置K板專項設計,方便混凝土澆筑后,該部位K板的及時拆除,以及時安裝爬架附著。


第三、支座處鋁模獨板優化成平板,支座直接安裝在獨板上固定后爬升。附墻支 座處的模板優化出放置附墻支座的空間,可在樓層現場首拼時現場開支座螺栓孔 (支座定位),連續豎向設置支座定位,需要配置 4 套獨板,爬升時底部定位模 板跟隨支座倒至到頂部順壞使用,以此類推;


②飄窗位置。根據飄窗位置空間大小,看是否需要將K板設計成上下兩塊,混凝土澆筑完成,及時將爬架附著位置下半塊K板提前拆除,以安裝爬架附著支座。

③消防連廊位置。對該部位爬架附著點鋁模獨立設計,以滿足附著處鋁模能夠及時拆除。

4、在架體提升過程中,不得有其他班組的人員在架體上施工。架體上不能堆放鋼筯、木方、鋼管、扣件、各種埋件、水電管等易滑落建筑材料。5、木工的支模體系不能利用外爬架做為受力點對模板進行加固。6、澆筑混凝土過程中,如果不慎有混凝土漏漿在架體上,每次提升前一天,安排人對架體的建筑垃圾進行清理,防止在提升過程中墜物傷人、確保施工安全與工程形象。7、由于爬架使用的預埋管件為塑料材質、且位置要求相對比較精確,為了確保每個孔位的暢通及位置的準確性,需要給澆筑班組技術交底澆筑時振動棒盡量不要靠在我方的預埋管件上面操作或不要人為破壞預埋管,以防止管件破壞或出現較大的位置偏移而導致我方不能安裝附墻支座。由于附著式升降腳手架附著于高層建筑結構上,依靠提升設備自行升降,具有較大的勢能和不確定因素,故一旦發生事故,后果嚴重,因此存在較大的施工風險,屬于施工現場的重大危險源,一旦控制措施不到位或失效,應會造成重大事故隱患或導致事故發生。
2011年9月10日上午8時30分,西安市未央路和玄武路交界處的凱旋大廈工地一棟在建30層高樓,在施工過程中發生腳手架倒塌,這些腳手架是從20-23層墜落的,共造成10人死亡。主要原因就是由于使用過程中人為解除附著升降腳手架的防墜裝置,下降作業前,操作人員在提升裝置下吊點掛鉤未鉤住主框架的情況下,提前拆除承力構件,而此時腳手架上作業人員尚未拆離,最終造成腳手架架體塌和人員重大傷亡事故,是一起典型的違章操作引起的安全事故。

★需主樓及裙樓結構圖(梁板、柱、大樣)、建筑圖(平、立、剖、大樣)包括:機位數(估)、周長、防護面積、使用高度、起止層、提升層數、使用的附著、防護材料,項目特殊點。★從收到中標通知書到施工方案編制及材料計算需要15個工作日時間
★確定中標后,雙方技術部取得聯系,總包需要提供以下資料:
①施工電梯位置CAD及是否進入架體
②塔吊位置及附臂附著具體位置CAD
③卸料平臺位置CAD(數量以招標投標文件為準)
④鋁模深化圖CAD
⑤公司廣告放置位置及廣告CAD文件

⑥流水段(架體的分組)是否有特殊要求
⑦飄窗或其他上反結構是否一次成型
⑧最新建筑結構圖
變更步距是否調整
★方案編制過程中
①架體立面布置完成后,雙方確認步距是否需要調整(若涉及走道板步數的變動,需要考慮費用的增加)
②是否有涉及圖紙、塔吊、電梯等影響方案的變更需要第一時間通知

★方案編制完成后
①專家論證
施工方案公司內部自審并簽字蓋章→提供總包方公司審核簽字蓋章→報監理審核簽字蓋章,同時電子版提供專家組,約定時間定點進行專家論證。
建質【2009】87號文“關于印發《危險性較大的分部分項工程安全管理辦法》的通知”附件二中提到提升高度150m及以上附著式整體和分片提升腳手架工程需要專家論證。

★方案編制完成后
②材料計算
從材料計算完成給加工廠下單到首次進場材料生產完成需要15個工作日時間即從確定中標到進場,至少需要預留30個工作日時間。

素材來源:豆丁施工、安全藝人、騰越建筑